Back to Search
Office For Lease
Occidental Life Building Office Suites
119 3rd Street SW, Albuquerque, New Mexico 87102
Details
- Category Office
- Type For Lease
- Lease Rate $20.00/RSF Full Service
- Available Space ±2,685 - 9,915 RSF
- Zoning MX-FB
Description
- Historic, re-energized Downtown work spaces
- Thoughtful updates with vintage character
- Bright interior, natural light throughout
- Flexible suite configurations
- Building elevator
- Attentive Landlord
Documents
Spaces
Suite 101
For Lease
±2,685 RSF
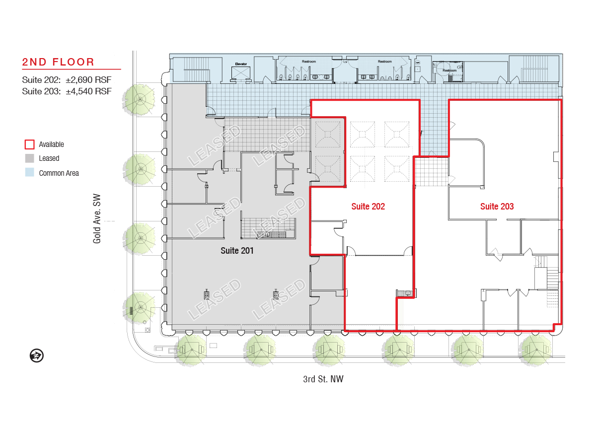
Suite 202
For Lease
±2,690 RSF
Suite 203
For Lease
±4,540 RSF
Listing Advisors
Office
Micah Gray, CCIM
- Office505.878.0001
- Direct505.338.9878
- Mobile575.562.9006
- Emailmicah@sunvista.com
Retail
John Algermissen, CCIM
- Direct505.998.5734
- Office505.878.0001
- Mobile505.264.7242
- Emailjohna@sunvista.com