Back to Search
Retail or Office For Lease
Retail/Office Near Sandia Labs & Kirtland AFB
237 Eubank Blvd. NE, Albuquerque, New Mexico 87123
Details
- Category Retail or Office
- Type For Lease
- Lease Rate $14.33/SF + $4.96/SF NNN ($1,250/Mo. Including NNN)
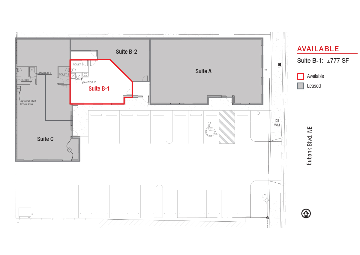
- Available Space ±777 SF
- Zoning MX-L
Description
- Conveniently located 1/3 mi. south of I-40, 1/4 mi. north of Central and 1.5 mi. north of Kirtland AFB
- Parking ratio: 4.2:1,000
- 33,300 CPD on Eubank Blvd.
- Generously-sized monument signage for maximum visibility
- 3-phase power
- No cannabis
Documents
Space
Suite B-1
For Lease
±777 SF
$1,250/Mo. Including NNN
Listing Advisors
Office
Todd Strickland
- Direct505.998.5735
- Office505.878.0001
- Mobile505.450.1121
- Emailtodd@sunvista.com
Office
Rob Bridges, CCIM
- Direct505.878.0005
- Office505.878.0001
- Mobile505.977.5094
- Emailrob@sunvista.com