Back to Search
Industrial For Lease
First-Generation Warehouse
1180 Exchange, Bernalillo, New Mexico 87004
Details
- Category Industrial
- Type For Lease
- Lease Rate $11.00/SF NNN
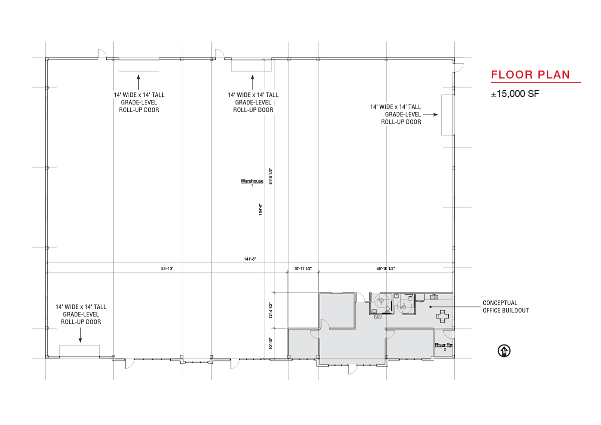
- Available Space ±15,000 SF
- Year Built 2023
- Zoning M-1
Description
- In rapidly-expanding Sandoval County
- New, metal building constructed in 2023
- 4 – 14’x14’ grade-level roll-up doors
- Power: 3-phase, 1200-amp service
- Clear heights: 16’ – 23.75’
- Demisable
- 1.8:1000 parking ratio
- Excess yard space available
- Fully sprinklered
- Quick access to US Hwy. 550 & NM Hwy. 528
- Robust industrial zoning
Documents
Listing Advisors
Land & Industrial
Alex Pulliam, SIOR
- Direct505.338.9875
- Office505.878.0001
- Mobile505.350.5729
- Emailalex@sunvista.com
Land & Industrial
Riley McKee, CCIM, SIOR
- Direct505.998.1656
- Office505.878.0001
- Mobile505.379.1549
- Emailriley@sunvista.com