Back to Search
Retail or Office For Sale
Freestanding Retail/Office Building
1307 Juan Tabo Blvd. NE, Albuquerque, New Mexico 87112
Details
- Category Retail or Office
- Type For Sale
- Sale Price $685,000.00
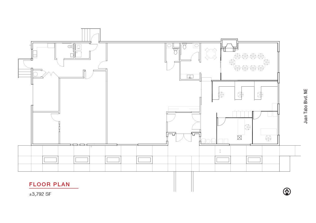
- Available Space ±3,792 SF
- Lot Size ±0.50 Acres
- Zoning MX-L
Description
- Located along a major corridor with strong traffic counts at 30,000 cars per day
- Includes a large training center, conference room, multiple offices, two kitchenettes and restrooms
- Modern buildout with flexible layout to suit a variety of users
- Allows for single-user or multi-user configuration
- Newer TPO roof that’s ±2 years old
- Three HVAC combo units, two of which have recently been replaced
- Large parking lot with a 6.6:1,000 parking ratio
- Access directly off Juan Tabo Blvd.
- Prominent pylon and building signage
- Ideal for childcare, medical or retail users
Documents
Listing Advisors
Land & Industrial, Retail
Genieve Posen
- Direct505 998 1568
- Office505 878 0001
- Mobile505 290 7413
- Emailgenieve@sunvista.com
Retail
John Algermissen, CCIM
- Direct505.998.5734
- Office505.878.0001
- Mobile505.264.7242
- Emailjohna@sunvista.com