Back to Search
Industrial For Lease
Affordable Warehouse Spaces
215 Rossmoor Road SW, Albuquerque, New Mexico 87105
Details
- Category Industrial
- Type For Lease
- Lease Rate $5.50/SF
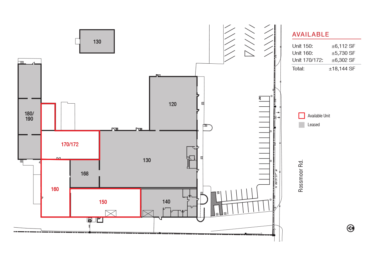
- Available Space ±5,730 - 18,144 SF
- Zoning M-2, Bernalillo County
Description
- 12’ – 20’ warehouse clear height
- 5 grade-level overhead doors*
- 1 dock-high overhead door*
- 3-phase, 480 volt, 250 Amp power
- 24/7 on site security
- Secure yard space available
- Land also available… See Advisors for more information
- Located in a HUB Zone
- Located in a Opportunity Zone
*Number of grade-level and dock-high doors vary by unit
Documents
Spaces
Unit 150
Industrial For Lease
±6,112 SF
$5.50/SF + NNN
Unit 160
Industrial For Lease
±5,730 SF
$5.50/SF + NNN
Unit 170/172
Industrial For Lease
±6,302 SF
$5.50/SF + NNN
Listing Advisors
Land & Industrial
Riley McKee, CCIM, SIOR
- Direct505.998.1656
- Office505.878.0001
- Mobile505.379.1549
- Emailriley@sunvista.com
Land & Industrial
Alex Pulliam, SIOR
- Direct505.338.9875
- Office505.878.0001
- Mobile505.350.5729
- Emailalex@sunvista.com