Back to Search
Retail For Lease
Prime Nob Hill Retail Suites
3408 Central Avenue SE, Albuquerque, New Mexico 87106
Details
- Category Retail
- Type For Lease
- Lease Rate $1,200.00 Monthly - $3,500.00 Monthly NNN
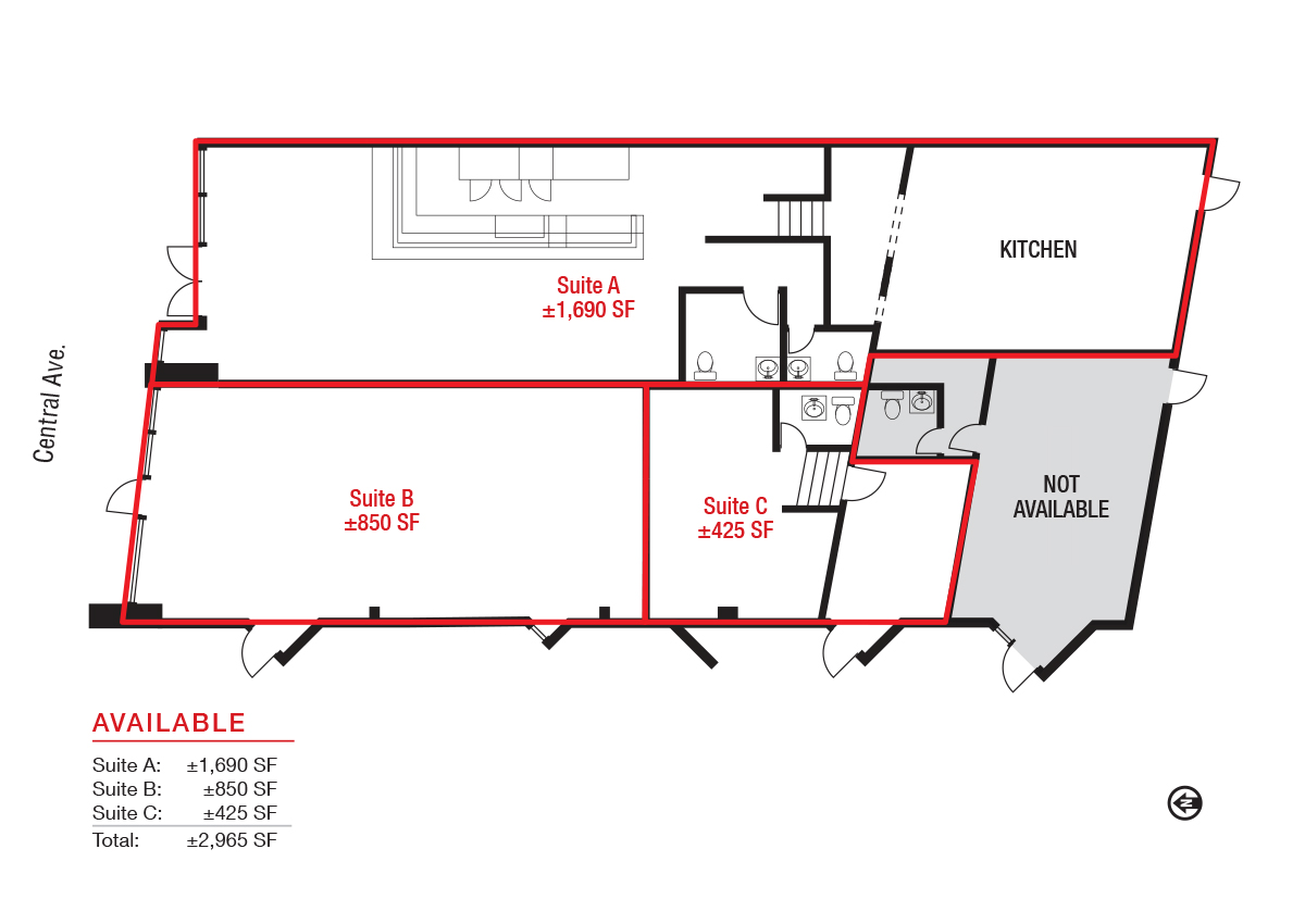
- Available Space ±425 - 2,965 SF
- Zoning MX-M
Description
- On old Route 66 just minutes from UNM
- Bite-sized retail suites
- Central Ave. frontage and excellent visibility with almost 14,000 cars per day
- Strategic Nob Hill location near UNM, boutique retail, restaurants, and entertainment
- Lively neighborhood with consistent daytime and evening foot traffic
- One of the few walkable neighborhood districts in the city
- Multiple access points with ample on site parking
Documents
Spaces
Suite A
For Lease
±1,690 SF
$3,500/Month + $6.00/SF NNN
- Turn-key restaurant
- 12’ hood and grease trap
- 3-compartment sink
- Walk-in cooler
Suite B
For Lease
±850 SF
$1,700/Month + $6.00/SF NNN
Suite C
For Lease
±425 SF
$1,200/Month + $6.00/SF NNN
Listing Advisors
Retail
John Algermissen, CCIM
- Direct505.998.5734
- Office505.878.0001
- Mobile505.264.7242
- Emailjohna@sunvista.com