Back to Search
Industrial For Sale or Lease
North I-25 Multi-Bay Industrial
3425 Girard Blvd. NE, Albuquerque, New Mexico 87107
Details
- Category Industrial
- Type For Sale or Lease
- Sale Price $763,000 ($160.00/SF)
- Lease Rate $12.00/SF NNN
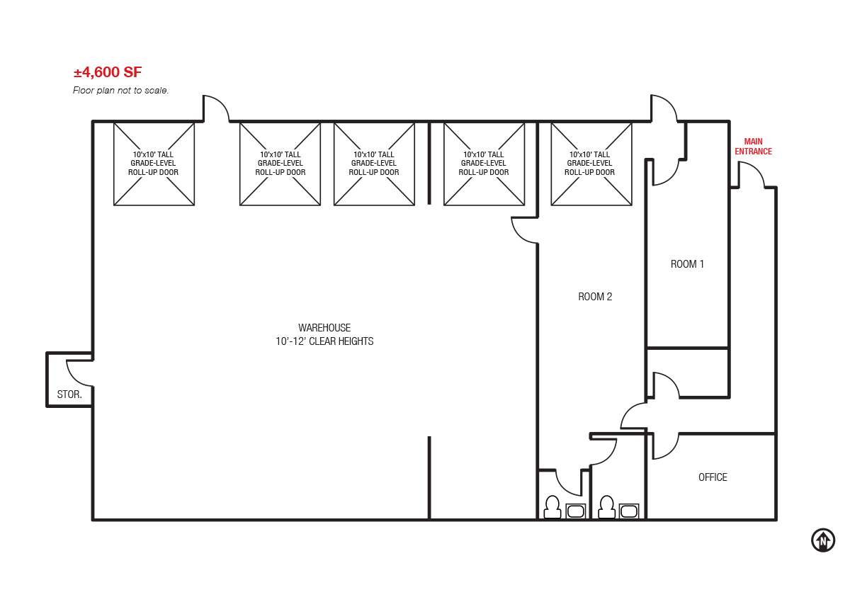
- Available Space ±4,600 SF
- Lot Size ±0.34 Acres
Description
- Seller financing available
- 5 – 10’x10’ grade-level bay doors
- 10’-12’ clear heights
- 400-amp, 120/208V 3-phase power
- Fenced yard
- Private office, 2 additional rooms and 2 restrooms
- Ideal location between Comanche Rd. and Candelaria Rd. with easy access to both I-25 & I-40
- Opportunity Zone and HUB Zone designated
Documents
Listing Advisors
Land & Industrial
Ben Nolte, CCIM
- Office505.878.0001
- Direct505.998.5739
- Mobile505.270.4386
- Emailben@sunvista.com