Back to Search
Office or Land For Sale
Freestanding Office and Corner Lot
4701 Montaño Road NW, Albuquerque, New Mexico 87120
Details
- Category Office or Land
- Type For Sale
- Sale Price $900,000.00
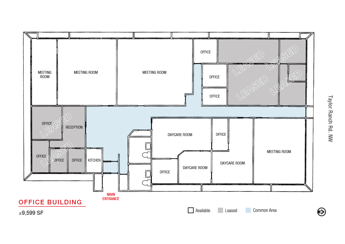
- Available Space ±9,559 SF
- Lot Size ±3.50 Acres
- Zoning MX-L
Description
- High visibility at a signalized intersection
- Owner/user with in-place income
- Value-add investment
- Easy access from I-40 and Coors Blvd.
- Large corner lot with development potential (currently drainage pond location)
- Close to shops, residential neighborhoods and community services
- Long-term tenants
- High-traffic corner
- Cross-access agreement in place with ADC Family Campus
- Ideal for non-profit, financial, government, professional services, long-term investor
Documents
Listing Advisors
Office
Kate Potter
- Office505.878.0001
- Direct505.998.1571
- Mobile505.730.8479
- Emailk.potter@sunvista.com