Back to Search
Industrial For Sale or Lease
Flexible Office & Industrial Space
1920 Columbia Drive SE, Albuquerque, New Mexico 87106
Details
- Category Industrial
- Type For Sale or Lease
- Sale Price $2,233,125 ($125/SF)
- Lease Rate $13.50/SF + NNN
- Available Space ±7,238 - 17,865 SF
- Lot Size ±0.98 Acres
- Clear Height 14' - 16'
- Zoning NR-C
Description
- Built for business in Southeast Albuquerque
- Ideal for distribution, contractor services, logistics, and light manufacturing
- Quick access to I-25 and major arteries
- Building: Two-tenant industrial facility featuring durable concrete tilt-up construction
- Fire Protection: Fully sprinklered
- Electrical: 3-phase, 480V service supporting a wide range of industrial uses
- Loading & Circulation: Efficient truck court with ±40’ depth
- Utilities: Suites separately metered
Documents
Spaces
Entire Property
For Sale
±17,865 SF
$2,233,125 ($125/SF)
- Building: Two-tenant industrial facility featuring durable concrete tilt-up construction
- Fire Protection: Fully sprinklered
- Electrical: 3-phase, 480V service supporting a wide range of industrial uses
- Loading & Circulation: Efficient truck court with ±40’ depth
- Utilities: Suites separately metered
- ±14′ – 16’ clear heights
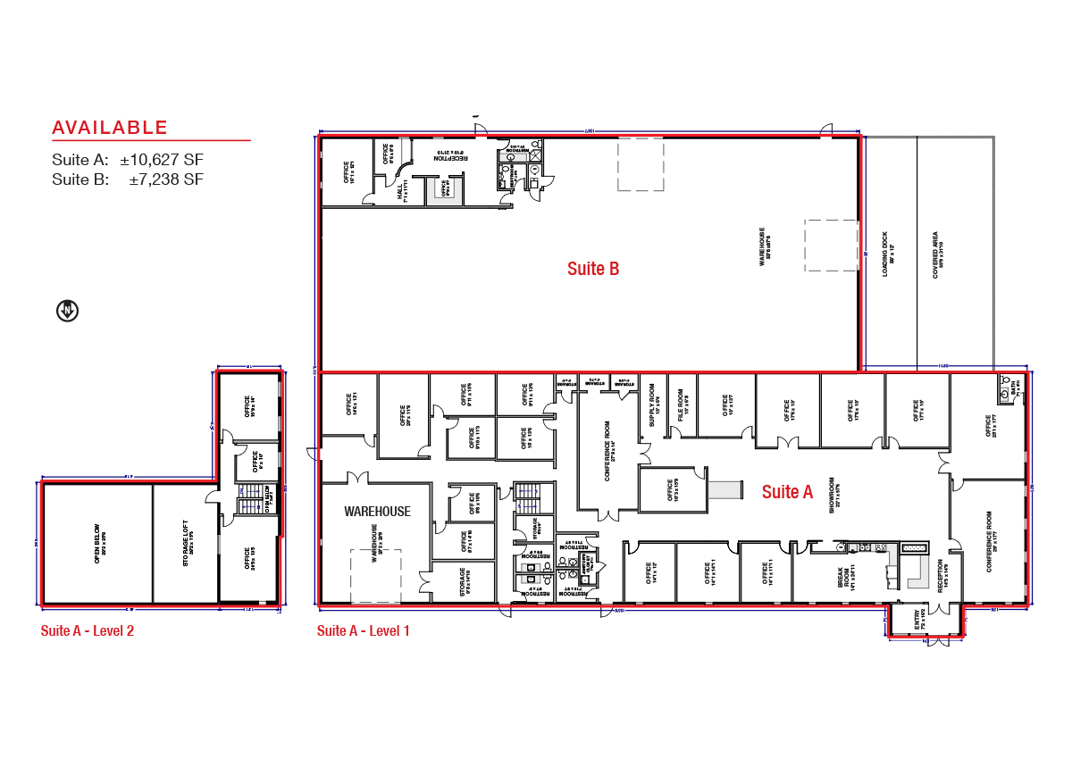
Suite A
For Lease
±10,627 SF
Lease Rate: $13.50/SF + NNN
- Warehouse: ±3,152 SF
- Office: ±7,475 SF
- Fully-remodeled office build-out that’s move-in ready
- One grade-level, drive-in door
- ±16’ clear height
Suite B
For Lease
±7,238 SF
Lease Rate: $13.50/SF + NNN
- Warehouse: ±6,304 SF
- Office: ±934 SF
- One dock-high (covered) and one grade-level, drive-in door
- ±14’ clear height
Listing Advisors
Retail, Land & Industrial
Alexis Lovato
- Office505.878.0001
- Direct505.338.4106
- Mobile505.639.6433
- Emailalexis@sunvista.com
Land & Industrial, Investment Properties
Jim Hakeem
- Direct505.878.0006
- Office505.878.0001
- Mobile505.250.8542
- Emailjim@sunvista.com