Back to Search
Office, Industrial or Retail For Lease
North I-25 Industrial & Office Space
3600-3700 Osuna Rd. NE, Albuquerque, NM 87109
Details
- Category Office, Industrial or Retail
- Type For Lease
- Lease Rate $14.00/SF Modified Gross with 3-Year Lease Term
- Available Space ±1,500 - 3,000 SF
- Zoning NR-BP
Description
- Less than one mile west of I-25
- Flexible floor plans
- Local ownership and on-site property management/maintenance
- Dusk-to-dawn security patrol
- Very convenient to local restaurants & amenities
Documents
Spaces
Suite 202
Industrial or Office For Lease
±2,250 SF
$14.00/SF Modified Gross ($2,625/Month) 3-Year Lease
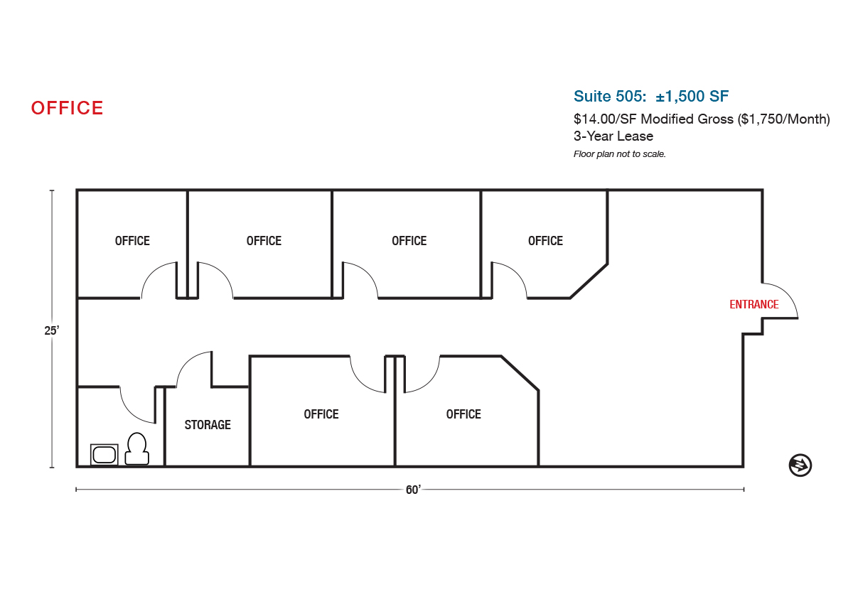
Suite 505
Office For Lease
±1,500 SF
$14.00/SF ($1,750/Month)
Suite 508
Office For Lease
±1,500 SF
$14.00/SF Modified Gross ($1,750/Month) with 3-Year Lease
Suite 603
Industrial or Office For Lease
±3,000 SF
$14.00/SF Modified Gross ($3,500/Month)
Listing Advisors
Office
Todd Strickland
- Direct505.998.5735
- Office505.878.0001
- Mobile505.450.1121
- Emailtodd@sunvista.com
Office
Rob Bridges, CCIM
- Direct505.878.0005
- Office505.878.0001
- Mobile505.977.5094
- Emailrob@sunvista.com
Office, Investment Properties
Dave Hill, CCIM, SIOR
- Direct505.998.1576
- Emaildave@sunvista.com
- Mobile505.238.6413