Back to Search
Office For Lease
Class-A Office Space Close to Home
5600 Eubank Blvd. NE, Albuquerque, New Mexico 87111
Details
- Category Office
- Type For Lease
- Lease Rate $25.00/SF Full Service ($5,447.92/Month) Includes 5-day-a-week janitorial
- Available Space ±1,370 SF
- Parking Ratio 3.4:1000
- Zoning MX-T
Description
- Just minutes from North Albuquerque Acres, Sandia Heights, High Desert and Tanoan
- Inviting “Class A” finishes with warm wood tones and an abundance of natural light
- Corner office space
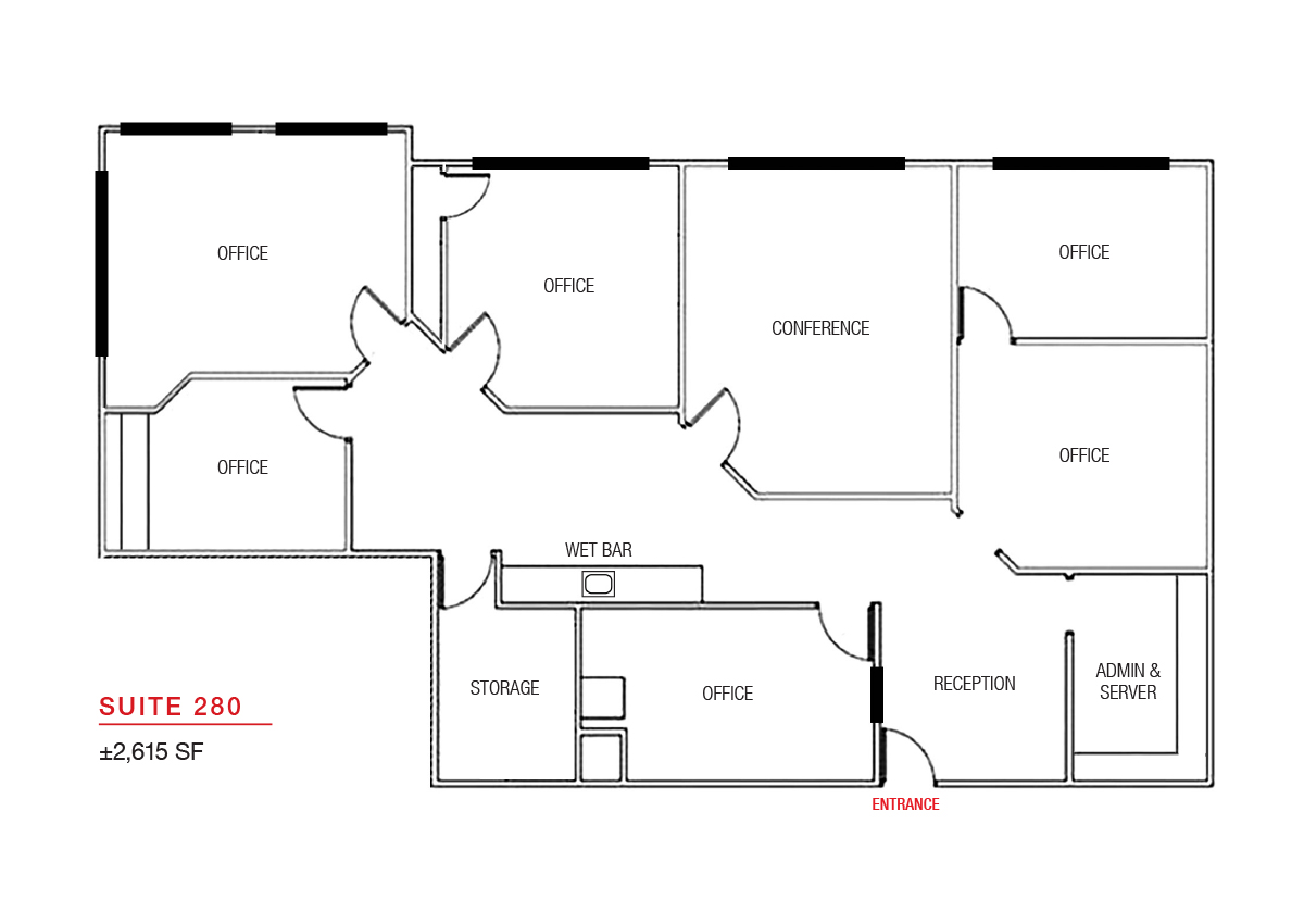
- 6 offices, conference room, reception area and storage
- Common-area conference room also available on first-come, first-served basis
- 3.4:1000 parking ratio
- 31 covered parking spaces, 2 of which are reserved for Suite 280
Documents
Space

Suite 280
Office For Lease
±2,615 SF
$25.00/SF Full Service ($5,447.92/Month) Includes 5-day-a-week janitorial
Listing Advisors
Office
Todd Strickland
- Direct505.998.5735
- Office505.878.0001
- Mobile505.450.1121
- Emailtodd@sunvista.com
Office
Rob Bridges, CCIM
- Direct505.878.0005
- Office505.878.0001
- Mobile505.977.5094
- Emailrob@sunvista.com