Back to Search
Industrial For Lease
Stand-Alone Flex Space With Yard
5816 Signal Avenue NE, Albuquerque, New Mexico 87113
Details
- Category Industrial
- Type For Lease
- Lease Rate $4,760/Mo. Including NNN
- Available Space ±3,200 SF
- Lot Size ±0.43 Acres
- Date Available May 1, 2026
- Zoning NR-LM
Description
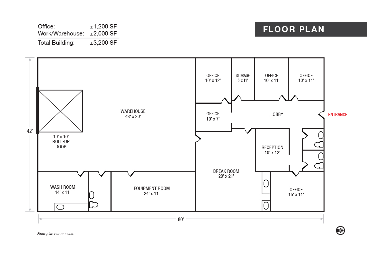
- Office: ±1,200 SF
- Work/Warehouse: ±2,000 SF
- At I-25 between Paseo del Norte and Alameda Blvd.
- Ready-to-occupy with terrific access to I-25 from Paseo del Norte and Alameda Blvd.
- Five offices, two ADA restrooms, reception desk, break room and storage
- Warehouse with 10’x10’ drive-in door
- Totally fenced yard with hard-wired security and additional storage within yard
- Immaculately kept
- 13 parking spaces in front with plenty of additional parking in yard
Documents
Listing Advisors
Office, Industrial
Todd Strickland
- Direct505.998.5735
- Office505.878.0001
- Mobile505.450.1121
- Emailtodd@sunvista.com
Office
Rob Bridges, CCIM
- Direct505.878.0005
- Office505.878.0001
- Mobile505.977.5094
- Emailrob@sunvista.com